-
-
-
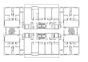
- Location:
- Parcela I del Plan Parcial del Sector Ibarreta-Zuloko
de Barakaldo (Bizkaia)
-
- Floor area:
- 20.206 sq.mt.
-
- Dwellings:
- 112
Offices:
18
Client:
- Vallehermoso División Promoción
S.A.U.
-
- Architects:
- Eugenio Aguinaga
- José María Jimenez Urrutia
- Javier Barrero
- Belén Benavides
- Ignacio López
-
- Structural:
- OTEP
-
- Mechanical:
- Dicyp S.A.
-
- Design Project:
- February 2002
-
- Record Project:
- November 2002
-
- Built:
- November 2005
|
 |